
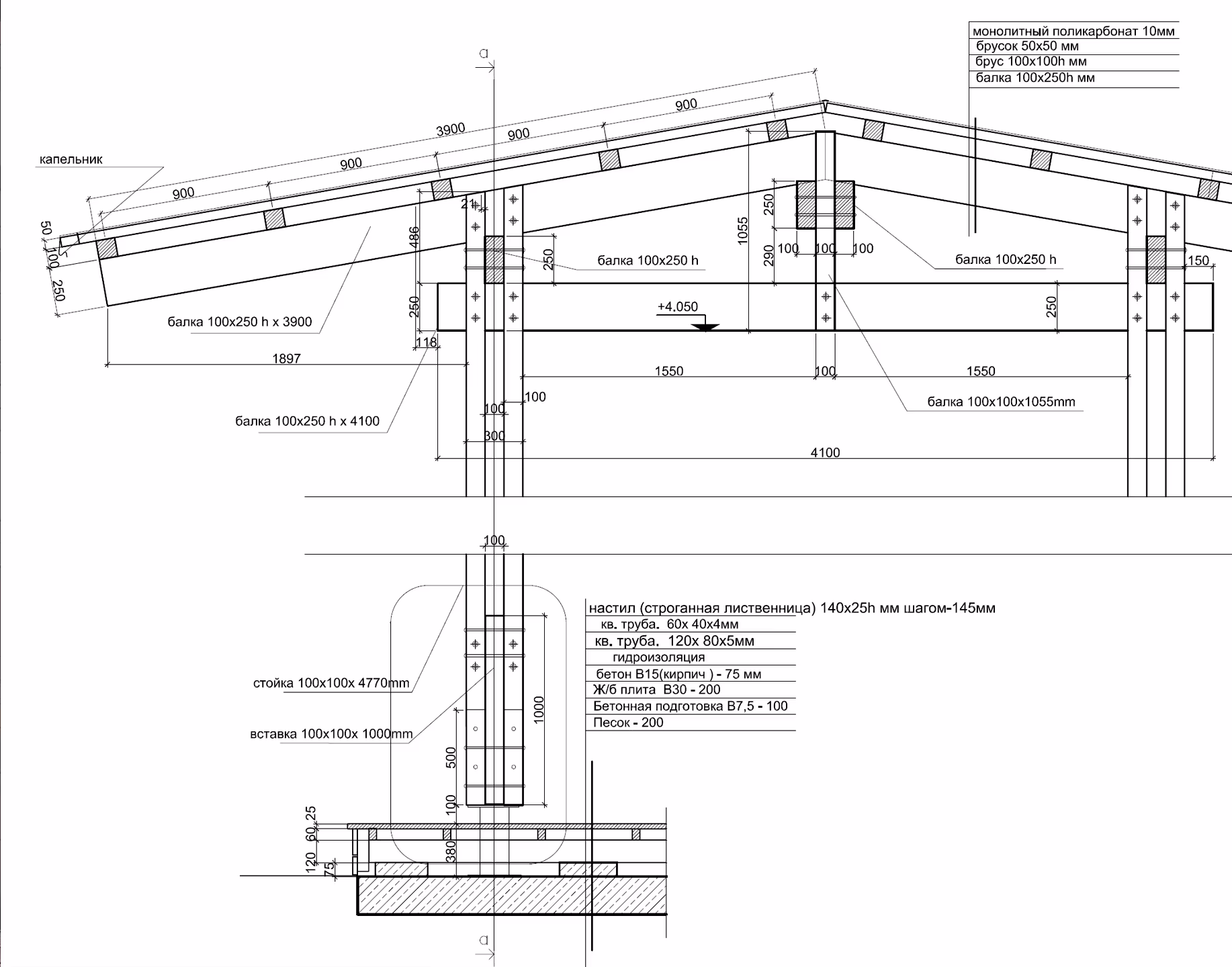
Банный комплекс расположен в Московской области. Композиция дома состоит из прямоугольных объемов и примыкающими к ним террасы и навеса. Дом теплый из газоблока с утеплением, подходит для круглогодичного использования. В фасадной отделке используется кирпич, планкен из лиственницы и деревянная рейка. Конструкции навеса из строганного бруса с покрытием из прозрачного поликарбоната
Год 2018 г.
Общая площадь бани 150 м²
Площадь крылец и терасс дома 128 м²
План 1 этажа
эскиз































